- Stunning Modern Town House
- Extensive Spacious Accommodation
- Over Three Floors
- Providing Five Double Bedrooms
- Three Bathrooms
- Top Floor Comprising Master Bedroom, Dressing Room & En-Suite
- Huge Open Plan Kitchen/Living Area
- Large Garden & Balcony
- No Upward Chain
- EPC - C
Full Description
As spacious, modern family homes go this is an absolute beauty! With extensive accommodation over three floors, this wonderful detached house is a great opportunity to acquire an impressive, modern family home on a popular residential development. Available with no upward chain.
Key Features
- Stunning Modern Town House
- Extensive Spacious Accommodation
- Over Three Floors
- Providing Five Double Bedrooms
- Three Bathrooms
- Top Floor Comprising Master Bedroom, Dressing Room & En-Suite
- Huge Open Plan Kitchen/Living Area
- Large Garden & Balcony
- No Upward Chain
- EPC - C
The Property
24 Troed Y Bryn is an impressive, detached family home that offers extensive spacious accommodation over three floors. A perfect property to enjoy modern comforts and open plan living accommodation. The property is well maintained and presented for sale, is fully double glazed with a mains gas heating system and is available to purchase with no upward chain.
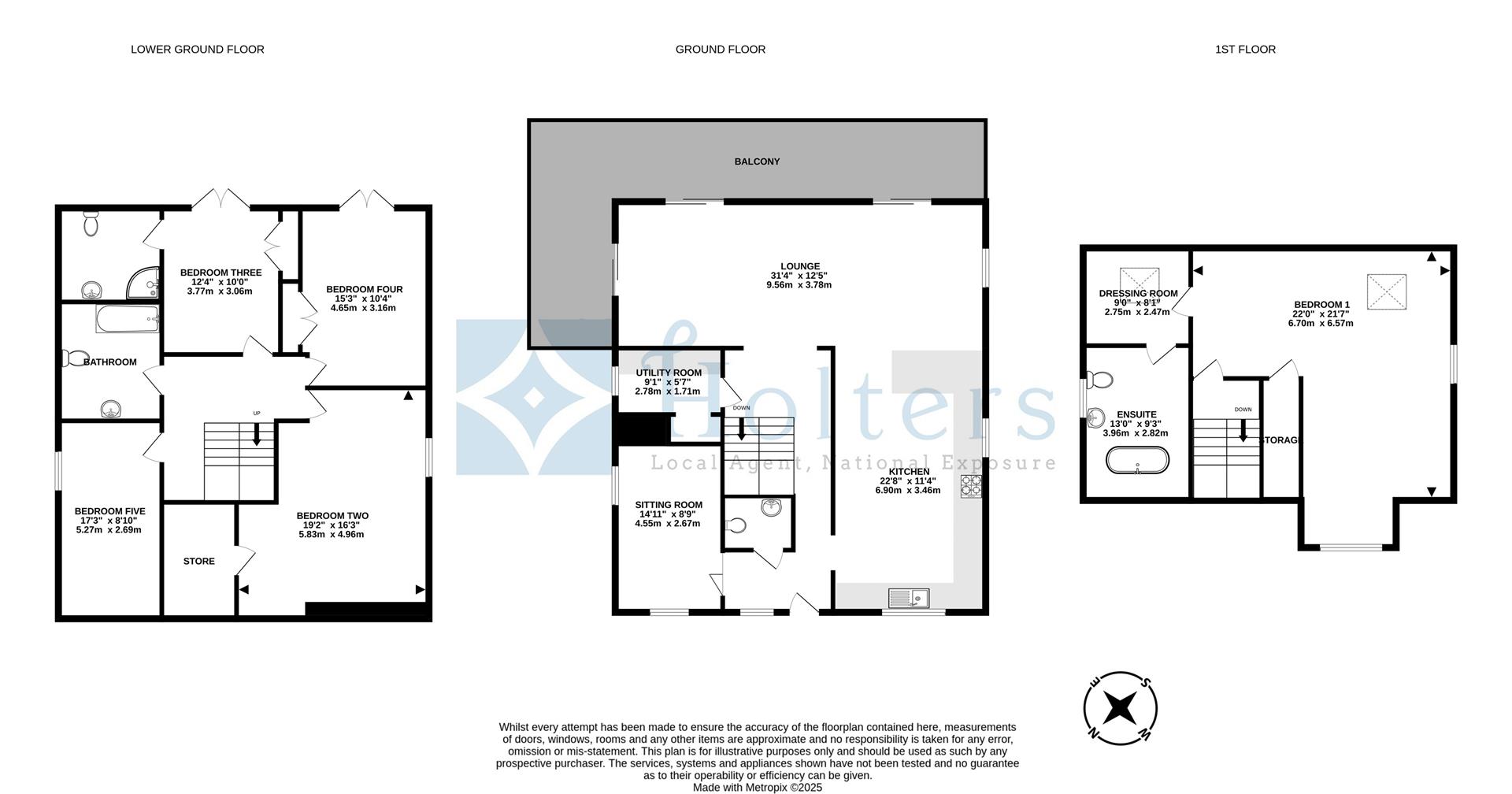
As you enter the property you step into the main hall, the large hallway with stairs to the first and lower ground floor certainly sets the spacious theme straight away. Immediately on your left the former integral garage which has been converted to offer a second reception room which provides an opportunity for a private area if needed. On the right of the hall is the kitchen, this impressive space offers a wonderful fitted kitchen with a breakfast bar area and is open plan to the dining area and lounge. The huge open plan space really encapsulates the modern living and is a wonderful area for the family to enjoy. The dining area/lounge runs the width of the house at the rear and has access onto the decked balcony which enjoys lovely rural views to the fields at the back. The final room on the ground floor is a useful utility room accessed off the main hall.
Have you been looking for that 'wow' master bedroom? Well wait until you see this! The first floor offers a stunning master bedroom suite, comprising of a large bedroom with walk-in storage cupboard, dressing room and en-suite bathroom. With a modern white bathroom suite with separate roll top bath this floor gives privacy from the other bedrooms. The lower ground floor continues to impress with not only its size but quality finish. There are four bedrooms in total, all doubles but in particular bedroom two is a huge room! Bedroom three offers an en-suite shower room and there is a family bathroom, again with a modern suite and is well presented for sale. Bedrooms two and three have fitted double wardrobes and both have French doors opening to the rear garden.
Externally the property offers off road parking for 4 vehicles with steps descending to the rear garden. Mainly lawn, with flowering beds and borders the garden is a great area for children to play, with decked seating areas accessed directly off bedrooms three and four, the outside and inside space link extremely well. Part of the garden slopes to a further lawn area which offers great potential to enhance the garden or continue to use as space for children to play. From the house and garden you enjoy lovely views to the fields which currently have horses grazing.
The Location
The property is located on Troed y Bryn, a popular residential development. From Troed Y Bryn you can walk to the town centre but enjoy the peace of being on the edge of town. The market town of Builth Wells (Llanfair ym Mault) is located at the heart of Powys, Mid-Wales in what is arguably some of the most beautiful countryside in the United Kingdom. Builth Wells lies within the Historic Boundaries of Brecknockshire, situated on the banks of the River Wye and the River Irfon – The Upper section of the Wye Valley. Builth Wells is famously known for playing host to the Royal Welsh Show, which is the biggest agricultural show in Europe and attracts over 240,000 visitors to the town each year. With a population of around two and a half thousand – the positive impact this has on many local businesses located within Builth Wells is immeasurable. Builth Wells is ideally located in regard to beautiful surroundings with the Elan Valley and Brecon Beacons both just a short drive away.
Nearest Towns
Llandrindod Wells - 8 miles
Brecon - 17 miles
Hay on Wye - 19 miles
Hereford - 40 miles
Services
We are informed the property is connected to all mains services.
Heating
The property has the benefit of gas fired central heating.
Council Tax
Powys County Council - Band G.
Tenure
We are informed the property is of freehold tenure.
Money Laundering Regulations
In order to comply with current legislation, we are required to carry out Anti-Money Laundering checks on all prospective purchasers verifying the customer’s identity. A company called Credit Safe provide Anti Money Laundering compliance reports for us, the cost of which is to be covered by prospective purchasers. At the point of your offer being verbally accepted, you agree to paying a non-refundable fee of £29.95 +VAT (£35.94 inc. VAT) per purchaser in order for us to carry out our due diligence.
Consumer Protection
Consumer protection from unfair trading regulations 2008 - Holters for themselves and for the vendors or lessors of this property whose agents they are give notice that: 1. These particulars are set out as a general outline only for the guidance of intended purchasers or lessors and do not constitute part of an offer or contract. 2. All descriptions, dimensions, reference to condition and necessary permissions for use and occupation, and other details are given without responsibility and any intending purchasers or tenants should not rely on them as statements or representations of fact but must satisfy themselves by inspection or otherwise as to the correctness of each term of them. 3. The vendors or lessors do not make or give, and neither do Holters for themselves nor any person in their employment have any authority to make or give any representation or warranty whatever in relation to this property.
Wayleaves, Easements and Rights of Way
The property will be sold subject to and with the benefits of all wayleaves, easements and rights of way, whether mentioned in these sales particulars or not.
Viewing
Please contact us on 01584 707079 if you wish to arrange a viewing appointment for this property, or require further information.
Energy Performance Certificate
Click here to view the Energy Efficiency Rating and Environmental Impact Rating for this property.
Disclaimer
Holters - SY1 endeavour to maintain accurate depictions of properties in Virtual Tours, Floor Plans and descriptions, however, these are intended only as a guide and purchasers must satisfy themselves by personal inspection.
Key Features
- Stunning Modern Town House
- Extensive Spacious Accommodation
- Over Three Floors
- Providing Five Double Bedrooms
- Three Bathrooms
- Top Floor Comprising Master Bedroom, Dressing Room & En-Suite
- Huge Open Plan Kitchen/Living Area
- Large Garden & Balcony
- No Upward Chain
- EPC - C
The Property
24 Troed Y Bryn is an impressive, detached family home that offers extensive spacious accommodation over three floors. A perfect property to enjoy modern comforts and open plan living accommodation. The property is well maintained and presented for sale, is fully double glazed with a mains gas heating system and is available to purchase with no upward chain.
As you enter the property you step into the main hall, the large hallway with stairs to the first and lower ground floor certainly sets the spacious theme straight away. Immediately on your left the former integral garage which has been converted to offer a second reception room which provides an opportunity for a private area if needed. On the right of the hall is the kitchen, this impressive space offers a wonderful fitted kitchen with a breakfast bar area and is open plan to the dining area and lounge. The huge open plan space really encapsulates the modern living and is a wonderful area for the family to enjoy. The dining area/lounge runs the width of the house at the rear and has access onto the decked balcony which enjoys lovely rural views to the fields at the back. The final room on the ground floor is a useful utility room accessed off the main hall.
Have you been looking for that 'wow' master bedroom? Well wait until you see this! The first floor offers a stunning master bedroom suite, comprising of a large bedroom with walk-in storage cupboard, dressing room and en-suite bathroom. With a modern white bathroom suite with separate roll top bath this floor gives privacy from the other bedrooms. The lower ground floor continues to impress with not only its size but quality finish. There are four bedrooms in total, all doubles but in particular bedroom two is a huge room! Bedroom three offers an en-suite shower room and there is a family bathroom, again with a modern suite and is well presented for sale. Bedrooms two and three have fitted double wardrobes and both have French doors opening to the rear garden.
Externally the property offers off road parking for 4 vehicles with steps descending to the rear garden. Mainly lawn, with flowering beds and borders the garden is a great area for children to play, with decked seating areas accessed directly off bedrooms three and four, the outside and inside space link extremely well. Part of the garden slopes to a further lawn area which offers great potential to enhance the garden or continue to use as space for children to play. From the house and garden you enjoy lovely views to the fields which currently have horses grazing.
The Location
The property is located on Troed y Bryn, a popular residential development. From Troed Y Bryn you can walk to the town centre but enjoy the peace of being on the edge of town. The market town of Builth Wells (Llanfair ym Mault) is located at the heart of Powys, Mid-Wales in what is arguably some of the most beautiful countryside in the United Kingdom. Builth Wells lies within the Historic Boundaries of Brecknockshire, situated on the banks of the River Wye and the River Irfon – The Upper section of the Wye Valley. Builth Wells is famously known for playing host to the Royal Welsh Show, which is the biggest agricultural show in Europe and attracts over 240,000 visitors to the town each year. With a population of around two and a half thousand – the positive impact this has on many local businesses located within Builth Wells is immeasurable. Builth Wells is ideally located in regard to beautiful surroundings with the Elan Valley and Brecon Beacons both just a short drive away.
Nearest Towns
Llandrindod Wells - 8 miles
Brecon - 17 miles
Hay on Wye - 19 miles
Hereford - 40 miles
Services
We are informed the property is connected to all mains services.
Heating
The property has the benefit of gas fired central heating.
Council Tax
Powys County Council - Band G.
Tenure
We are informed the property is of freehold tenure.
Money Laundering Regulations
In order to comply with current legislation, we are required to carry out Anti-Money Laundering checks on all prospective purchasers verifying the customer’s identity. A company called Credit Safe provide Anti Money Laundering compliance reports for us, the cost of which is to be covered by prospective purchasers. At the point of your offer being verbally accepted, you agree to paying a non-refundable fee of £29.95 +VAT (£35.94 inc. VAT) per purchaser in order for us to carry out our due diligence.
Consumer Protection
Consumer protection from unfair trading regulations 2008 - Holters for themselves and for the vendors or lessors of this property whose agents they are give notice that: 1. These particulars are set out as a general outline only for the guidance of intended purchasers or lessors and do not constitute part of an offer or contract. 2. All descriptions, dimensions, reference to condition and necessary permissions for use and occupation, and other details are given without responsibility and any intending purchasers or tenants should not rely on them as statements or representations of fact but must satisfy themselves by inspection or otherwise as to the correctness of each term of them. 3. The vendors or lessors do not make or give, and neither do Holters for themselves nor any person in their employment have any authority to make or give any representation or warranty whatever in relation to this property.
Wayleaves, Easements and Rights of Way
The property will be sold subject to and with the benefits of all wayleaves, easements and rights of way, whether mentioned in these sales particulars or not.
Viewing
Please contact us on 01584 707079 if you wish to arrange a viewing appointment for this property, or require further information.
Energy Performance Certificate
Click here to view the Energy Efficiency Rating and Environmental Impact Rating for this property.
Disclaimer
Holters - SY1 endeavour to maintain accurate depictions of properties in Virtual Tours, Floor Plans and descriptions, however, these are intended only as a guide and purchasers must satisfy themselves by personal inspection.

