- Well Presented, Detached Family Home
- Master Bedroom with Mezzanine & En-Suite
- 3 Further Well Proportioned Bedrooms
- 2 Reception Rooms
- Family Bathroom, En-suite and Downstairs WC
- South-West Facing Rear Garden
- Recently Fitted Solar Panels
- Available with No Upward Chain
- Driveway Providing Ample Off Road Parking
- Popular Village Location
Full Description
Have you been searching for the perfect family home? Well, stop right there because you've found it! This well presented, detached property is set in the desirable village of Kerry and offers 4 bedrooms, a spacious family kitchen/diner, an additional reception room, off road parking and an enclosed rear garden! *VIDEO TOUR AVAILABLE*
Key Features
- Well Presented, Detached Family Home
- Master Bedroom with Mezzanine & En-Suite
- 3 Further Well Proportioned Bedrooms
- 2 Reception Rooms
- Family Bathroom, En-suite and Downstairs WC
- South-West Facing Rear Garden
- Recently Fitted Solar Panels
- Driveway Providing Ample Off Road Parking
- Available with No Upward Chain
- Popular Village Location
- EPC D
The Property
9 Herbert Court is a well presented and spacious detached house located in a quiet residential cul-de-sac in the popular village of Kerry, found in the heart of beautiful Montgomeryshire, approximately 2.5 miles from the market town of Newtown with its many shops, train station and facilities. Closer to home, the village primary school, two pubs, the village hall and post-office/ shop are all found within walking distance of the property.
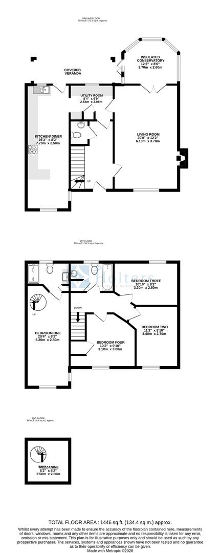
Inside, an entrance hall has stairs rising off to the first floor, with separate doors leading into the downstairs WC, useful utility room and spacious kitchen diner, both benefitting from a range of integrated appliances. The property also boasts a large family living room, with a wood-fired log burner, perfect for winter evenings, as well as a light and airy insulated conservatory with doors leading out to the rear garden. A real advantage of the outdoor space is the covered veranda, which makes the garden usable year-round and offers a sheltered, practical space for everyday use, including drying washing.
On the second floor, a landing area gives way to the master bedroom with ensuite shower room and stairs up to a mezzanine area, perfect for an office space or additional storage area. There are 3 further good-sized bedrooms and a family bathroom which comprises of a bath with mains over shower, wash basin and WC.
Outside, the driveway at front of the property provides off road parking for 3 cars, as well as a front lawn and lean-to storage area to the side of the house. A wooden gate allows access into the south-west facing rear garden, which is completely enclosed and both fenced and bordered by a beautiful established hedges, offering privacy and security – ideal for family life and entertainment. The garden is largely laid to lawn with a paved patio seating area, covered by a recently added glass veranda, and benefits from a good-sized shed (with electric supply & solar panels to serve the property) at the bottom of the garden.
Available with no upward chain, overall, this property offers an opportunity for wonderful family living, so don't miss out on the chance to secure such a delightful home!
The Location
Kerry is a picturesque village nestled in the heart of Powys, Wales, with a population of around 800 residents, it offers a blend of rural charm and modern amenities. The village is well-equipped with essential services, including two pubs—the Herbert Arms and the Kerry Lamb—a village hall, a bowling green, a post office, a primary school, and a hairdresser. The local football club, Kerry F.C., adds to the community's vibrant spirit. Kerry's rich history, scenic surroundings, and strong community make it a delightful place to visit or reside. Other towns, such as Welshpool, Newtown and Shrewsbury, are within commuting distance and provide access to the national rail and motorway network. Newtown which is less than 10 minutes by car, offers an extensive range of retail, recreational and educational facilities. There is outstanding education available in the area, with 8 junior/ infant schools including a special needs school, and Newtown High School & Sixth Form which was recently granted an 'Outstanding' award at inspection. Newtown also hosts a post school college – Coleg Powys, which offers a wide range of vocational courses from Hair & Beauty to Agriculture.
Tenure
We are informed the property is of freehold tenure.
Services
We are informed the property is connected to all mains services.
Heating
The property has the benefit of oil fired central heating.
Council Tax
Powys County Council - Band D.
Nearest Towns/Cities
Newtown - 2.5 Miles
Montgomery - 9 Miles
Bishops Castle - 13 Miles
Welshpool - 14 Miles
Llanfair Caereinion - 15 Miles
Shrewsbury - 30 Miles
What3Words
///sparrows.streaks.smile
Broadband
Enquiries indicate the property has an estimated fibre broadband speed of 900MB. Interested parties are advised to make their own enquiries.
Money Laundering Regulations
In order to comply with current legislation, we are required to carry out Anti-Money Laundering checks on all prospective purchasers verifying the customer’s identity. A company called Credit Safe provide Anti Money Laundering compliance reports for us, the cost of which is to be covered by prospective purchasers. At the point of your offer being verbally accepted, you agree to paying a non-refundable fee of £29.95 +VAT (£35.94 inc. VAT) per purchaser in order for us to carry out our due diligence.
Referral Fees
Holters routinely refers vendors and purchasers to providers of conveyancing and financial services. Please see our website for more information.
Wayleaves, Easements and Rights of Way
The property will be sold subject to and with the benefits of all wayleaves, easements and rights of way, whether mentioned in these sales particulars or not.
Consumer Protection
Consumer protection from unfair trading regulations 2008 - Holters for themselves and for the vendors or lessors of this property whose agents they are give notice that: 1. These particulars are set out as a general outline only for the guidance of intended purchasers or lessors and do not constitute part of an offer or contract. 2. All descriptions, dimensions, reference to condition and necessary permissions for use and occupation, and other details are given without responsibility and any intending purchasers or tenants should not rely on them as statements or representations of fact but must satisfy themselves by inspection or otherwise as to the correctness of each term of them. 3. The vendors or lessors do not make or give, and neither do Holters for themselves nor any person in their employment have any authority to make or give any representation or warranty whatever in relation to this property.
Viewing
Please contact us on 01686 213179 if you wish to arrange a viewing appointment for this property, or require further information.
Energy Performance Certificate
Click here to view the Energy Efficiency Rating and Environmental Impact Rating for this property.
Disclaimer
Holters - SY1 endeavour to maintain accurate depictions of properties in Virtual Tours, Floor Plans and descriptions, however, these are intended only as a guide and purchasers must satisfy themselves by personal inspection.
Key Features
- Well Presented, Detached Family Home
- Master Bedroom with Mezzanine & En-Suite
- 3 Further Well Proportioned Bedrooms
- 2 Reception Rooms
- Family Bathroom, En-suite and Downstairs WC
- South-West Facing Rear Garden
- Recently Fitted Solar Panels
- Driveway Providing Ample Off Road Parking
- Available with No Upward Chain
- Popular Village Location
- EPC D
The Property
9 Herbert Court is a well presented and spacious detached house located in a quiet residential cul-de-sac in the popular village of Kerry, found in the heart of beautiful Montgomeryshire, approximately 2.5 miles from the market town of Newtown with its many shops, train station and facilities. Closer to home, the village primary school, two pubs, the village hall and post-office/ shop are all found within walking distance of the property.
Inside, an entrance hall has stairs rising off to the first floor, with separate doors leading into the downstairs WC, useful utility room and spacious kitchen diner, both benefitting from a range of integrated appliances. The property also boasts a large family living room, with a wood-fired log burner, perfect for winter evenings, as well as a light and airy insulated conservatory with doors leading out to the rear garden. A real advantage of the outdoor space is the covered veranda, which makes the garden usable year-round and offers a sheltered, practical space for everyday use, including drying washing.
On the second floor, a landing area gives way to the master bedroom with ensuite shower room and stairs up to a mezzanine area, perfect for an office space or additional storage area. There are 3 further good-sized bedrooms and a family bathroom which comprises of a bath with mains over shower, wash basin and WC.
Outside, the driveway at front of the property provides off road parking for 3 cars, as well as a front lawn and lean-to storage area to the side of the house. A wooden gate allows access into the south-west facing rear garden, which is completely enclosed and both fenced and bordered by a beautiful established hedges, offering privacy and security – ideal for family life and entertainment. The garden is largely laid to lawn with a paved patio seating area, covered by a recently added glass veranda, and benefits from a good-sized shed (with electric supply & solar panels to serve the property) at the bottom of the garden.
Available with no upward chain, overall, this property offers an opportunity for wonderful family living, so don't miss out on the chance to secure such a delightful home!
The Location
Kerry is a picturesque village nestled in the heart of Powys, Wales, with a population of around 800 residents, it offers a blend of rural charm and modern amenities. The village is well-equipped with essential services, including two pubs—the Herbert Arms and the Kerry Lamb—a village hall, a bowling green, a post office, a primary school, and a hairdresser. The local football club, Kerry F.C., adds to the community's vibrant spirit. Kerry's rich history, scenic surroundings, and strong community make it a delightful place to visit or reside. Other towns, such as Welshpool, Newtown and Shrewsbury, are within commuting distance and provide access to the national rail and motorway network. Newtown which is less than 10 minutes by car, offers an extensive range of retail, recreational and educational facilities. There is outstanding education available in the area, with 8 junior/ infant schools including a special needs school, and Newtown High School & Sixth Form which was recently granted an 'Outstanding' award at inspection. Newtown also hosts a post school college – Coleg Powys, which offers a wide range of vocational courses from Hair & Beauty to Agriculture.
Tenure
We are informed the property is of freehold tenure.
Services
We are informed the property is connected to all mains services.
Heating
The property has the benefit of oil fired central heating.
Council Tax
Powys County Council - Band D.
Nearest Towns/Cities
Newtown - 2.5 Miles
Montgomery - 9 Miles
Bishops Castle - 13 Miles
Welshpool - 14 Miles
Llanfair Caereinion - 15 Miles
Shrewsbury - 30 Miles
What3Words
///sparrows.streaks.smile
Broadband
Enquiries indicate the property has an estimated fibre broadband speed of 900MB. Interested parties are advised to make their own enquiries.
Money Laundering Regulations
In order to comply with current legislation, we are required to carry out Anti-Money Laundering checks on all prospective purchasers verifying the customer’s identity. A company called Credit Safe provide Anti Money Laundering compliance reports for us, the cost of which is to be covered by prospective purchasers. At the point of your offer being verbally accepted, you agree to paying a non-refundable fee of £29.95 +VAT (£35.94 inc. VAT) per purchaser in order for us to carry out our due diligence.
Referral Fees
Holters routinely refers vendors and purchasers to providers of conveyancing and financial services. Please see our website for more information.
Wayleaves, Easements and Rights of Way
The property will be sold subject to and with the benefits of all wayleaves, easements and rights of way, whether mentioned in these sales particulars or not.
Consumer Protection
Consumer protection from unfair trading regulations 2008 - Holters for themselves and for the vendors or lessors of this property whose agents they are give notice that: 1. These particulars are set out as a general outline only for the guidance of intended purchasers or lessors and do not constitute part of an offer or contract. 2. All descriptions, dimensions, reference to condition and necessary permissions for use and occupation, and other details are given without responsibility and any intending purchasers or tenants should not rely on them as statements or representations of fact but must satisfy themselves by inspection or otherwise as to the correctness of each term of them. 3. The vendors or lessors do not make or give, and neither do Holters for themselves nor any person in their employment have any authority to make or give any representation or warranty whatever in relation to this property.
Viewing
Please contact us on 01686 213179 if you wish to arrange a viewing appointment for this property, or require further information.
Energy Performance Certificate
Click here to view the Energy Efficiency Rating and Environmental Impact Rating for this property.
Disclaimer
Holters - SY1 endeavour to maintain accurate depictions of properties in Virtual Tours, Floor Plans and descriptions, however, these are intended only as a guide and purchasers must satisfy themselves by personal inspection.

