- Semi-Detached House
- 2 Double Bedrooms
- Modern Kitchen/Diner
- Tastefully Appointed Family Bathroom
- Off-Road Parking and EV Charging Point
- Delightful Rear Garden
- Nearly New, Ideal for Modern Living
- NHBC Build Mark Warranty
- Set Within a Recently Built Development
- Edge of Town Position
Full Description
A modern, 2 bedroom, semi-detached house, located within a popular residential development on the edge of Ludlow, with off road parking and a pleasant rear garden.
Key Features
- Semi-Detached House
- 2 Double Bedrooms
- Modern Kitchen/Diner
- Tastefully Appointed Family Bathroom
- Off-Road Parking and EV Charging Point
- Delightful Rear Garden
- Nearly New, Ideal for Modern Living
- NHBC Build Mark Warranty
- Set Within a Recently Built Development
- Edge of Town Position
The Property
Introducing No.23 Murchison Place, which is a well presented, semi-detached house located in a modern development on the very edge of Ludlow approximately 1 mile from the historic town centre.
Built in 2022 by Shropshire Homes, No.23 occupies a desirable spot towards the rear of the development and should appeal to first-time buyers, investors, downsizing purchasers or perhaps those simply looking for a modern, efficient and low-maintenance home.
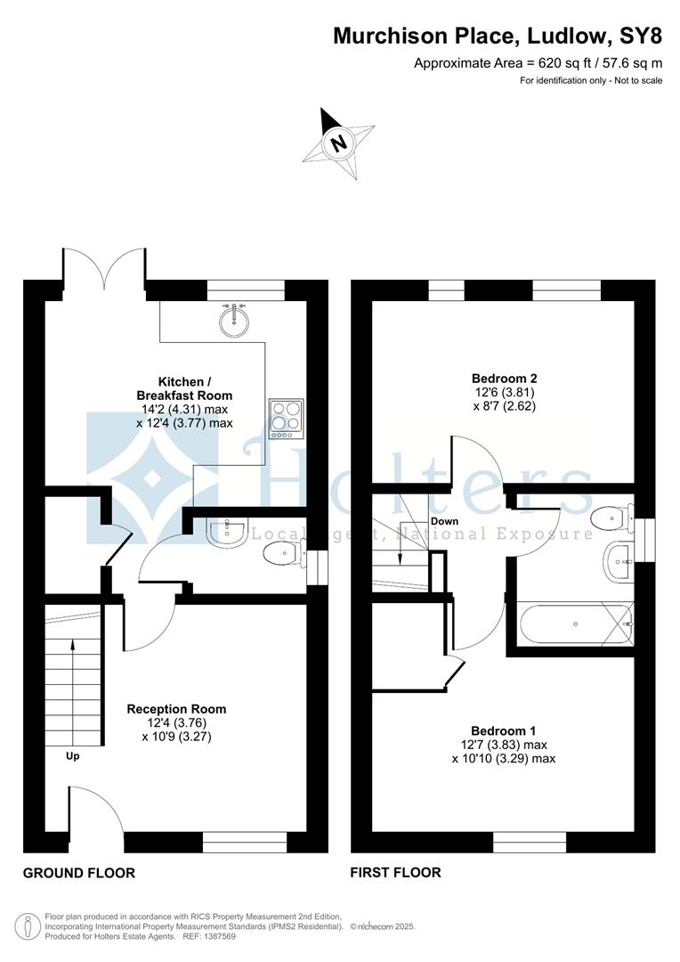
The interior remains like new and is made up on the ground floor of a living room, a W.C and an open-plan kitchen/diner with French doors opening out to the rear garden. Stairs from the living room rise to the first floor, where there is a landing area, 2 double bedrooms and a bathroom. The front bedroom benefits a built-in cupboard, while there is a further storage cupboard off the kitchen/diner.
Outside, there are 2 allocated parking spots directly out front, as well as a fitted electric car charging point. A paved passage leads alongside the house to a wooden gate, which opens to the rear garden, which is mainly laid to lawn with well-defined fenced borders and has a paved patio seating area directly at the back of the house.
The Town
The quintessential British town of Ludlow is a throwback to the days gone by. You can’t help but fall in love with the friendly welcoming townsfolk and the laid back lifestyle which feels a million miles away from the hustle and bustle of the big city. That’s not to say that Ludlow is a quiet little backwater, far from it. Hosting the famous Ludlow Food and Drink Festival, Ludlow Spring Festival, May Fair and Ludlow Fringe, so there are events to keep you entertained all year round. There are also countless antique and local produce markets and book, craft and garden fairs. For sport lovers days out at Ludlow Racecourse, Golf Course, Rugby, Cricket, Tennis, Bowling or Football Clubs could await. Then there’s the spectacular architecture and countryside that you’ll never grow tired of admiring. Ludlow has to be one of the most perfect places to reside in Britain. The county town of Shrewsbury is approximately 28 miles north and the Cathedral City of Hereford is 24 miles south. Both are easily accessible by the mainline rail that runs a frequent service to Manchester, Holyhead and Cardiff from Ludlow station.
Services
We are informed the property is connected to all mains services.
Heating
The property has the benefit of gas fired central heating.
Tenure
We are informed the property is of freehold tenure.
Council Tax
Shropshire Council - Band B.
Broadband
Enquiries indicate the property has an estimated fibre broadband speed of 300MB. Interested parties are advised to make their own enquiries.
Nearest Towns/Cities
Leominster - 12 miles
Tenbury Wells - 10.5 miles
Church Stretton - 16.5 miles
Hereford - 24 miles
Kidderminster - 23 miles
Shrewsbury - 28 miles
Telford - 29 miles
Agents Note*
An annual fee of £190 to Shropshire Homes is payable to maintain the communal hedges and lawns.
What3words
///race.waged.stole
Referral Fees
Holters routinely refers vendors and purchasers to providers of conveyancing and financial services. Please see our website for more information.
Money Laundering Regulations
In order to comply with current legislation, we are required to carry out Anti-Money Laundering (AML) checks on all prospective purchasers verifying the customer’s identity using biometric identification checks, which includes facial recognition. A company called Creditsafe Business Solutions Ltd provide Anti Money Laundering compliance reports for us, the cost of which is to be covered by prospective purchasers. At the point of your offer being verbally accepted, you agree to paying a non-refundable fee of £29.95 +VAT (£35.94 inc. VAT) per purchaser in order for us to carry out our due diligence.
Wayleaves, Easements and Rights of Way
The property will be sold subject to and with the benefits of all wayleaves, easements and rights of way, whether mentioned in these sales particulars or not.
Consumer Protection
Consumer protection from unfair trading regulations 2008 - Holters for themselves and for the vendors or lessors of this property whose agents they are give notice that: 1. These particulars are set out as a general outline only for the guidance of intended purchasers or lessors and do not constitute part of an offer or contract. 2. All descriptions, dimensions, reference to condition and necessary permissions for use and occupation, and other details are given without responsibility and any intending purchasers or tenants should not rely on them as statements or representations of fact but must satisfy themselves by inspection or otherwise as to the correctness of each term of them. 3. The vendors or lessors do not make or give, and neither do Holters for themselves nor any person in their employment have any authority to make or give any representation or warranty whatever in relation to this property.
Viewing
Please contact us on 01584 707079 if you wish to arrange a viewing appointment for this property, or require further information.
Energy Performance Certificate
Click here to view the Energy Efficiency Rating and Environmental Impact Rating for this property.
Disclaimer
Holters - SY1 endeavour to maintain accurate depictions of properties in Virtual Tours, Floor Plans and descriptions, however, these are intended only as a guide and purchasers must satisfy themselves by personal inspection.
Key Features
- Semi-Detached House
- 2 Double Bedrooms
- Modern Kitchen/Diner
- Tastefully Appointed Family Bathroom
- Off-Road Parking and EV Charging Point
- Delightful Rear Garden
- Nearly New, Ideal for Modern Living
- NHBC Build Mark Warranty
- Set Within a Recently Built Development
- Edge of Town Position
The Property
Introducing No.23 Murchison Place, which is a well presented, semi-detached house located in a modern development on the very edge of Ludlow approximately 1 mile from the historic town centre.
Built in 2022 by Shropshire Homes, No.23 occupies a desirable spot towards the rear of the development and should appeal to first-time buyers, investors, downsizing purchasers or perhaps those simply looking for a modern, efficient and low-maintenance home.
The interior remains like new and is made up on the ground floor of a living room, a W.C and an open-plan kitchen/diner with French doors opening out to the rear garden. Stairs from the living room rise to the first floor, where there is a landing area, 2 double bedrooms and a bathroom. The front bedroom benefits a built-in cupboard, while there is a further storage cupboard off the kitchen/diner.
Outside, there are 2 allocated parking spots directly out front, as well as a fitted electric car charging point. A paved passage leads alongside the house to a wooden gate, which opens to the rear garden, which is mainly laid to lawn with well-defined fenced borders and has a paved patio seating area directly at the back of the house.
The Town
The quintessential British town of Ludlow is a throwback to the days gone by. You can’t help but fall in love with the friendly welcoming townsfolk and the laid back lifestyle which feels a million miles away from the hustle and bustle of the big city. That’s not to say that Ludlow is a quiet little backwater, far from it. Hosting the famous Ludlow Food and Drink Festival, Ludlow Spring Festival, May Fair and Ludlow Fringe, so there are events to keep you entertained all year round. There are also countless antique and local produce markets and book, craft and garden fairs. For sport lovers days out at Ludlow Racecourse, Golf Course, Rugby, Cricket, Tennis, Bowling or Football Clubs could await. Then there’s the spectacular architecture and countryside that you’ll never grow tired of admiring. Ludlow has to be one of the most perfect places to reside in Britain. The county town of Shrewsbury is approximately 28 miles north and the Cathedral City of Hereford is 24 miles south. Both are easily accessible by the mainline rail that runs a frequent service to Manchester, Holyhead and Cardiff from Ludlow station.
Services
We are informed the property is connected to all mains services.
Heating
The property has the benefit of gas fired central heating.
Tenure
We are informed the property is of freehold tenure.
Council Tax
Shropshire Council - Band B.
Broadband
Enquiries indicate the property has an estimated fibre broadband speed of 300MB. Interested parties are advised to make their own enquiries.
Nearest Towns/Cities
Leominster - 12 miles
Tenbury Wells - 10.5 miles
Church Stretton - 16.5 miles
Hereford - 24 miles
Kidderminster - 23 miles
Shrewsbury - 28 miles
Telford - 29 miles
Agents Note*
An annual fee of £190 to Shropshire Homes is payable to maintain the communal hedges and lawns.
What3words
///race.waged.stole
Referral Fees
Holters routinely refers vendors and purchasers to providers of conveyancing and financial services. Please see our website for more information.
Money Laundering Regulations
In order to comply with current legislation, we are required to carry out Anti-Money Laundering (AML) checks on all prospective purchasers verifying the customer’s identity using biometric identification checks, which includes facial recognition. A company called Creditsafe Business Solutions Ltd provide Anti Money Laundering compliance reports for us, the cost of which is to be covered by prospective purchasers. At the point of your offer being verbally accepted, you agree to paying a non-refundable fee of £29.95 +VAT (£35.94 inc. VAT) per purchaser in order for us to carry out our due diligence.
Wayleaves, Easements and Rights of Way
The property will be sold subject to and with the benefits of all wayleaves, easements and rights of way, whether mentioned in these sales particulars or not.
Consumer Protection
Consumer protection from unfair trading regulations 2008 - Holters for themselves and for the vendors or lessors of this property whose agents they are give notice that: 1. These particulars are set out as a general outline only for the guidance of intended purchasers or lessors and do not constitute part of an offer or contract. 2. All descriptions, dimensions, reference to condition and necessary permissions for use and occupation, and other details are given without responsibility and any intending purchasers or tenants should not rely on them as statements or representations of fact but must satisfy themselves by inspection or otherwise as to the correctness of each term of them. 3. The vendors or lessors do not make or give, and neither do Holters for themselves nor any person in their employment have any authority to make or give any representation or warranty whatever in relation to this property.
Viewing
Please contact us on 01584 707079 if you wish to arrange a viewing appointment for this property, or require further information.
Energy Performance Certificate
Click here to view the Energy Efficiency Rating and Environmental Impact Rating for this property.
Disclaimer
Holters - SY1 endeavour to maintain accurate depictions of properties in Virtual Tours, Floor Plans and descriptions, however, these are intended only as a guide and purchasers must satisfy themselves by personal inspection.

