- Spacious Link Detached Dormer Bungalow set in a Rural Location
- Versatile layout with up to Five Bedrooms
- Open plan Kitchen / Dining Room & Two Utility Rooms
- Large Living Room, Conservatory And Games Room
- Plot approaching one acre with mature gardens
- Private driveway and ample parking
- Outbuilding providing useful storage or workshop space
- Excellent potential for renovation
- Offered for sale with no ongoing chain
- EPC D
Full Description
Y Geiniog Olaf enjoys a peaceful countryside setting with a lovely rural outlook. A spacious dormer bungalow with scope to create a well-proportioned family home.
Key Features
-Spacious Link Detached Dormer Bungalow set in a Rural Location
-Versatile layout with up to Five Bedrooms
-Open plan Kitchen/Dining Room & Two Utility Rooms
-Large Living Room, Conservatory And Games Room
-Plot approaching one acre with mature gardens
-Private driveway and ample parking
-Outbuilding providing useful storage or workshop space
-Excellent potential for renovation
-Offered for sale with no ongoing chain
-EPC D
The Property
Set in a peaceful rural spot with open countryside views, Y Geiniog Olaf presents an excellent opportunity to take on a substantial dormer bungalow in need of modernisation, with space, privacy, and potential in equal measure.
Built in the 1970s, the property sits on a plot approaching an acre, offering established gardens, a private driveway, and a large outbuilding. The setting is private yet easily accessible, with the surrounding hills providing a lovely backdrop to everyday life.
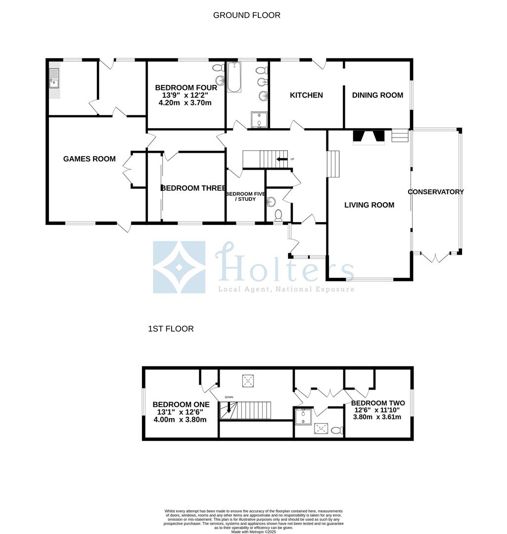
Inside, the accommodation is generous and versatile, extending to five bedrooms across two floors. The ground floor includes a large living room with adjoining conservatory, dining room, kitchen, and a games room that could be reconfigured to suit individual needs. Of the three bedrooms on this level, one was used by the family as a study, offering flexibility for home working or hobbies. There is also a family bathroom and separate WC. Upstairs, two further double bedrooms and a shower room complete the layout.
While the property requires comprehensive renovation, it offers an excellent canvas for those wishing to create a large family home or modern countryside retreat. The space, footprint, and setting make it an appealing prospect for anyone looking to make their own mark.
Outside, the mature plot wraps around the property, providing level lawns, mature trees, and plenty of parking space. The large shed offers practical storage or workshop options, and the far-reaching outlook completes the picture of a home with wonderful promise.
Offered with no ongoing chain, Y Geiniog Olaf is ready for its next chapter as a solid, well-located property with all the fundamentals in place for transformation.
The Location
Pennant is a small rural hamlet set in the scenic hills of mid Wales, close to the village of Llanbrynmair. The surrounding area is known for its peaceful countryside, winding lanes and unspoilt views, making it ideal for those seeking a quieter pace of life.
It’s a wonderful area for anyone who enjoys the outdoors, with miles of lanes and trails for walking, cycling and horse riding, along with excellent fishing nearby on the renowned Llyn Clywedog reservoir.
Llanbrynmair, just a short drive away, offers local amenities including a village shop, primary school and pub, while the market town of Machynlleth provides a wider range of shops, cafes and services around 12 miles to the west. The area is well placed for enjoying both countryside and coast, with Aberdyfi and the beaches of Cardigan Bay within easy reach.
Road connections are good for a rural location, with the A470 providing routes north towards Dolgellau and south towards Newtown. Rail links are available from Machynlleth, connecting to Shrewsbury, Birmingham and beyond.
Tenure
We are informed the property is of freehold tenure.
Council Tax
Powys County Council - Band G
Heating
The property has oil fired central heating.
Services
We are informed the property is connected to mains water and has a private drainage system
Broadband
Enquiries indicate the property has an estimated fibre broadband speed of 900 MB. Interested parties are advised to make their own enquiries.
What3Words
///teardrop.admit.relegate
Referral Fees
Holters routinely refers vendors and purchasers to providers of conveyancing and financial services. Please see our website for more information.
Wayleaves, Easements and Rights of Way
The property will be sold subject to and with the benefits of all wayleaves, easements and rights of way, whether mentioned in these sales particulars or not.
Consumer Protection
Consumer protection from unfair trading regulations 2008 - Holters for themselves and for the vendors or lessors of this property whose agents they are give notice that: 1. These particulars are set out as a general outline only for the guidance of intended purchasers or lessors and do not constitute part of an offer or contract. 2. All descriptions, dimensions, reference to condition and necessary permissions for use and occupation, and other details are given without responsibility and any intending purchasers or tenants should not rely on them as statements or representations of fact but must satisfy themselves by inspection or otherwise as to the correctness of each term of them. 3. The vendors or lessors do not make or give, and neither do Holters for themselves nor any person in their employment have any authority to make or give any representation or warranty whatever in relation to this property.
Money Laundering Regulations
In order to comply with current legislation, we are required to carry out Anti-Money Laundering (AML) checks on all prospective purchasers verifying the customer’s identity using biometric identification checks, which includes facial recognition. A company called Creditsafe Business Solutions Ltd provide Anti Money Laundering compliance reports for us, the cost of which is to be covered by prospective purchasers. At the point of your offer being verbally accepted, you agree to paying a non-refundable fee of £29.95 +VAT (£35.94 inc. VAT) per purchaser in order for us to carry out our due diligence.
Viewing
Please contact us on 01686 213179 if you wish to arrange a viewing appointment for this property, or require further information.
Energy Performance Certificate
Click here to view the Energy Efficiency Rating and Environmental Impact Rating for this property.
Disclaimer
Holters - SY1 endeavour to maintain accurate depictions of properties in Virtual Tours, Floor Plans and descriptions, however, these are intended only as a guide and purchasers must satisfy themselves by personal inspection.
Key Features
-Spacious Link Detached Dormer Bungalow set in a Rural Location
-Versatile layout with up to Five Bedrooms
-Open plan Kitchen/Dining Room & Two Utility Rooms
-Large Living Room, Conservatory And Games Room
-Plot approaching one acre with mature gardens
-Private driveway and ample parking
-Outbuilding providing useful storage or workshop space
-Excellent potential for renovation
-Offered for sale with no ongoing chain
-EPC D
The Property
Set in a peaceful rural spot with open countryside views, Y Geiniog Olaf presents an excellent opportunity to take on a substantial dormer bungalow in need of modernisation, with space, privacy, and potential in equal measure.
Built in the 1970s, the property sits on a plot approaching an acre, offering established gardens, a private driveway, and a large outbuilding. The setting is private yet easily accessible, with the surrounding hills providing a lovely backdrop to everyday life.
Inside, the accommodation is generous and versatile, extending to five bedrooms across two floors. The ground floor includes a large living room with adjoining conservatory, dining room, kitchen, and a games room that could be reconfigured to suit individual needs. Of the three bedrooms on this level, one was used by the family as a study, offering flexibility for home working or hobbies. There is also a family bathroom and separate WC. Upstairs, two further double bedrooms and a shower room complete the layout.
While the property requires comprehensive renovation, it offers an excellent canvas for those wishing to create a large family home or modern countryside retreat. The space, footprint, and setting make it an appealing prospect for anyone looking to make their own mark.
Outside, the mature plot wraps around the property, providing level lawns, mature trees, and plenty of parking space. The large shed offers practical storage or workshop options, and the far-reaching outlook completes the picture of a home with wonderful promise.
Offered with no ongoing chain, Y Geiniog Olaf is ready for its next chapter as a solid, well-located property with all the fundamentals in place for transformation.
The Location
Pennant is a small rural hamlet set in the scenic hills of mid Wales, close to the village of Llanbrynmair. The surrounding area is known for its peaceful countryside, winding lanes and unspoilt views, making it ideal for those seeking a quieter pace of life.
It’s a wonderful area for anyone who enjoys the outdoors, with miles of lanes and trails for walking, cycling and horse riding, along with excellent fishing nearby on the renowned Llyn Clywedog reservoir.
Llanbrynmair, just a short drive away, offers local amenities including a village shop, primary school and pub, while the market town of Machynlleth provides a wider range of shops, cafes and services around 12 miles to the west. The area is well placed for enjoying both countryside and coast, with Aberdyfi and the beaches of Cardigan Bay within easy reach.
Road connections are good for a rural location, with the A470 providing routes north towards Dolgellau and south towards Newtown. Rail links are available from Machynlleth, connecting to Shrewsbury, Birmingham and beyond.
Tenure
We are informed the property is of freehold tenure.
Council Tax
Powys County Council - Band G
Heating
The property has oil fired central heating.
Services
We are informed the property is connected to mains water and has a private drainage system
Broadband
Enquiries indicate the property has an estimated fibre broadband speed of 900 MB. Interested parties are advised to make their own enquiries.
What3Words
///teardrop.admit.relegate
Referral Fees
Holters routinely refers vendors and purchasers to providers of conveyancing and financial services. Please see our website for more information.
Wayleaves, Easements and Rights of Way
The property will be sold subject to and with the benefits of all wayleaves, easements and rights of way, whether mentioned in these sales particulars or not.
Consumer Protection
Consumer protection from unfair trading regulations 2008 - Holters for themselves and for the vendors or lessors of this property whose agents they are give notice that: 1. These particulars are set out as a general outline only for the guidance of intended purchasers or lessors and do not constitute part of an offer or contract. 2. All descriptions, dimensions, reference to condition and necessary permissions for use and occupation, and other details are given without responsibility and any intending purchasers or tenants should not rely on them as statements or representations of fact but must satisfy themselves by inspection or otherwise as to the correctness of each term of them. 3. The vendors or lessors do not make or give, and neither do Holters for themselves nor any person in their employment have any authority to make or give any representation or warranty whatever in relation to this property.
Money Laundering Regulations
In order to comply with current legislation, we are required to carry out Anti-Money Laundering (AML) checks on all prospective purchasers verifying the customer’s identity using biometric identification checks, which includes facial recognition. A company called Creditsafe Business Solutions Ltd provide Anti Money Laundering compliance reports for us, the cost of which is to be covered by prospective purchasers. At the point of your offer being verbally accepted, you agree to paying a non-refundable fee of £29.95 +VAT (£35.94 inc. VAT) per purchaser in order for us to carry out our due diligence.
Viewing
Please contact us on 01686 213179 if you wish to arrange a viewing appointment for this property, or require further information.
Energy Performance Certificate
Click here to view the Energy Efficiency Rating and Environmental Impact Rating for this property.
Disclaimer
Holters - SY1 endeavour to maintain accurate depictions of properties in Virtual Tours, Floor Plans and descriptions, however, these are intended only as a guide and purchasers must satisfy themselves by personal inspection.

