- Link Detached Townhouse
- 3 Double Bedrooms
- Living Room with Log Burner
- Country-Style Kitchen
- Lovely Family Bathroom
- Converted Cellar
- Private Off-Road Parking Space
- Brimming with Character
- Heart of Popular Bishops Castle
- Council Tax C
Full Description
                A truly unique home, in a truly unique town.6 Salop Street in Bishops Castle is a 3 bedroom property packed with charm and character. 
                
Key Features
- Link Detached Townhouse
- 3 Double Bedrooms
- Living Room with Log Burner
- Country-Style Kitchen
- Lovely Family Bathroom
- Converted Cellar
- Private Off-Road Parking Space
- Brimming with Character
- Heart of Popular Bishops Castle
- Council Tax C
The Property
There are some houses in the world that instantly spark curiosity and 6 Salop Street is certainly one of those properties. Anyone who knows Bishops Castle will have walked past it's blue door numerous times and thought "I wonder what lies within." Well, Holters are delighted to introduce this truly unique property to the market, ready for it to be discovered by it's next custodian.
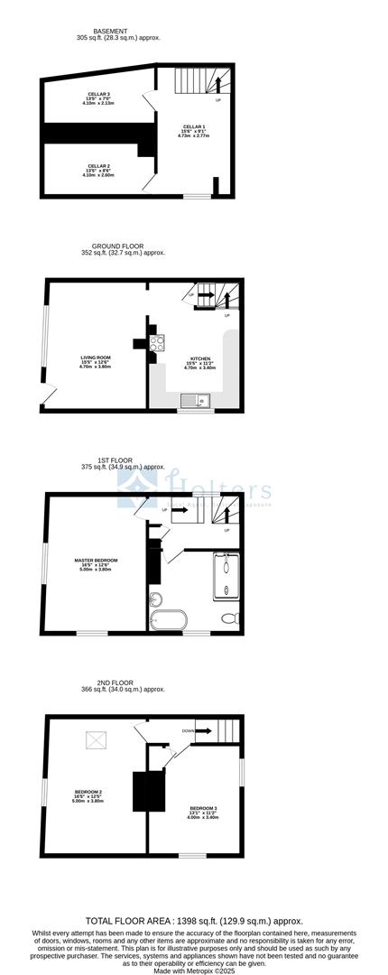
6 Salop Street is a deceptively spacious link-detached character property, believed to date back to early 19th Century. Bought by the current owners in 2015, it is rich in history with one former resident believed to be a legendary Bishops Castle character, named Miss Gotobed!
The accommodation, which spans over four floors, consists of a living room, kitchen, three double bedrooms, family bathroom and converted cellar.
You enter directly into the living room, complete with wooden beams and log burner, perfect for cosy winter evenings. The living room leads directly into the country-style kitchen with traditional shaker-style cabinetry. A central wooden island, with rustic stools, provides a welcoming spot for casual dining or morning coffee, and clever shelving and alcoves add both charm and function.
Moving up to the first floor, you find the first of the generous double bedrooms and the recently updated spacious family bathroom with large walk in shower, stand-alone bath, wash-basin and WC. The two remining bedrooms are located on the second floor.
A further set of stairs from the kitchen leads down to cellar, which the current owners have spent considerable time converting, including tanking, making it a usable and versatile space. It is configured into 3 rooms and is currently being used as a utility / storage space but has potential for additional usage (subject to relevant plannings and permissions)
To the rear of the property, in a courtyard accessed by a private lane, is the property's dedicated parking space which at present has a small shed on it.
This gem of a property has a lot to offer and is definitely worth a viewing!
The Location
Nestled in the rolling hills of South Shropshire, Bishop’s Castle is a vibrant and picturesque market town that effortlessly blends rural tranquility with a lively community spirit. Famous for its rich history, quirky independent shops, and warm, welcoming atmosphere, it’s the perfect setting for those seeking a slower pace of life without sacrificing character or culture.
Surrounded by stunning countryside, including the Shropshire Hills Area of Outstanding Natural Beauty, Bishop’s Castle is a haven for walkers, cyclists, and nature lovers. The town itself boasts a fascinating heritage, with centuries-old architecture, cobbled streets, and landmarks such as the House on Crutches Museum and the remains of the medieval castle that gave the town its name.
Despite its peaceful setting, Bishop’s Castle has a lively social scene, renowned for its arts, music, and festivals—including the famous Real Ale Trail and Michaelmas Fair. Two traditional breweries, a collection of artisan shops, and a variety of pubs and eateries add to its unique, independent charm.
Well-connected yet wonderfully secluded, Bishop’s Castle offers a lifestyle that combines countryside serenity with creative energy and community warmth—making it a truly special place to call home.
Tenure
We are informed the property is of freehold tenure.
Council Tax
Shropshire Council - Band C
Services
We are informed the property is connected to all mains services.
Heating
The property has the benefit of gas fired central heating.
Broadband
Enquiries indicate the property has an estimated fibre broadband speed of 50MB. Interested parties are advised to make their own enquiries.
Nearest Towns
Church Stoke - 7 miles
Montgomery - 9 miles
Church Stretton - 13 miles
Newtown - 16 miles
Ludlow - 20 miles
Shrewsbury - 23 miles
What3Words
///shining.blotting.fuzz
Wayleaves, Easements and Rights of Way
The property will be sold subject to and with the benefits of all wayleaves, easements and rights of way, whether mentioned in these sales particulars or not.
Money Laundering Regulations
In order to comply with current legislation, we are required to carry out Anti-Money Laundering checks on all prospective purchasers verifying the customer’s identity. A company called Credit Safe provide Anti Money Laundering compliance reports for us, the cost of which is to be covered by prospective purchasers. At the point of your offer being verbally accepted, you agree to paying a non-refundable fee of £29.95 +VAT (£35.94 inc. VAT) per purchaser in order for us to carry out our due diligence.
Consumer Protection
Consumer protection from unfair trading regulations 2008 - Holters for themselves and for the vendors or lessors of this property whose agents they are give notice that: 1. These particulars are set out as a general outline only for the guidance of intended purchasers or lessors and do not constitute part of an offer or contract. 2. All descriptions, dimensions, reference to condition and necessary permissions for use and occupation, and other details are given without responsibility and any intending purchasers or tenants should not rely on them as statements or representations of fact but must satisfy themselves by inspection or otherwise as to the correctness of each term of them. 3. The vendors or lessors do not make or give, and neither do Holters for themselves nor any person in their employment have any authority to make or give any representation or warranty whatever in relation to this property.
Viewing
Please contact us on 01686 213179 if you wish to arrange a viewing appointment for this property, or require further information.
                
Energy Performance Certificate
Click here to view the Energy Efficiency Rating and Environmental Impact Rating for this property.
                    
                 
Disclaimer
Holters - SY1 endeavour to maintain accurate depictions of properties in Virtual Tours, Floor Plans and descriptions, however, these are intended only as a guide and purchasers must satisfy themselves by personal inspection.
                
            
            Key Features
- Link Detached Townhouse
- 3 Double Bedrooms
- Living Room with Log Burner
- Country-Style Kitchen
- Lovely Family Bathroom
- Converted Cellar
- Private Off-Road Parking Space
- Brimming with Character
- Heart of Popular Bishops Castle
- Council Tax C
The Property
There are some houses in the world that instantly spark curiosity and 6 Salop Street is certainly one of those properties. Anyone who knows Bishops Castle will have walked past it's blue door numerous times and thought "I wonder what lies within." Well, Holters are delighted to introduce this truly unique property to the market, ready for it to be discovered by it's next custodian.
6 Salop Street is a deceptively spacious link-detached character property, believed to date back to early 19th Century. Bought by the current owners in 2015, it is rich in history with one former resident believed to be a legendary Bishops Castle character, named Miss Gotobed!
The accommodation, which spans over four floors, consists of a living room, kitchen, three double bedrooms, family bathroom and converted cellar.
You enter directly into the living room, complete with wooden beams and log burner, perfect for cosy winter evenings. The living room leads directly into the country-style kitchen with traditional shaker-style cabinetry. A central wooden island, with rustic stools, provides a welcoming spot for casual dining or morning coffee, and clever shelving and alcoves add both charm and function.
Moving up to the first floor, you find the first of the generous double bedrooms and the recently updated spacious family bathroom with large walk in shower, stand-alone bath, wash-basin and WC. The two remining bedrooms are located on the second floor.
A further set of stairs from the kitchen leads down to cellar, which the current owners have spent considerable time converting, including tanking, making it a usable and versatile space. It is configured into 3 rooms and is currently being used as a utility / storage space but has potential for additional usage (subject to relevant plannings and permissions)
To the rear of the property, in a courtyard accessed by a private lane, is the property's dedicated parking space which at present has a small shed on it.
This gem of a property has a lot to offer and is definitely worth a viewing!
The Location
Nestled in the rolling hills of South Shropshire, Bishop’s Castle is a vibrant and picturesque market town that effortlessly blends rural tranquility with a lively community spirit. Famous for its rich history, quirky independent shops, and warm, welcoming atmosphere, it’s the perfect setting for those seeking a slower pace of life without sacrificing character or culture.
Surrounded by stunning countryside, including the Shropshire Hills Area of Outstanding Natural Beauty, Bishop’s Castle is a haven for walkers, cyclists, and nature lovers. The town itself boasts a fascinating heritage, with centuries-old architecture, cobbled streets, and landmarks such as the House on Crutches Museum and the remains of the medieval castle that gave the town its name.
Despite its peaceful setting, Bishop’s Castle has a lively social scene, renowned for its arts, music, and festivals—including the famous Real Ale Trail and Michaelmas Fair. Two traditional breweries, a collection of artisan shops, and a variety of pubs and eateries add to its unique, independent charm.
Well-connected yet wonderfully secluded, Bishop’s Castle offers a lifestyle that combines countryside serenity with creative energy and community warmth—making it a truly special place to call home.
Tenure
We are informed the property is of freehold tenure.
Council Tax
Shropshire Council - Band C
Services
We are informed the property is connected to all mains services.
Heating
The property has the benefit of gas fired central heating.
Broadband
Enquiries indicate the property has an estimated fibre broadband speed of 50MB. Interested parties are advised to make their own enquiries.
Nearest Towns
Church Stoke - 7 miles
Montgomery - 9 miles
Church Stretton - 13 miles
Newtown - 16 miles
Ludlow - 20 miles
Shrewsbury - 23 miles
What3Words
///shining.blotting.fuzz
Wayleaves, Easements and Rights of Way
The property will be sold subject to and with the benefits of all wayleaves, easements and rights of way, whether mentioned in these sales particulars or not.
Money Laundering Regulations
In order to comply with current legislation, we are required to carry out Anti-Money Laundering checks on all prospective purchasers verifying the customer’s identity. A company called Credit Safe provide Anti Money Laundering compliance reports for us, the cost of which is to be covered by prospective purchasers. At the point of your offer being verbally accepted, you agree to paying a non-refundable fee of £29.95 +VAT (£35.94 inc. VAT) per purchaser in order for us to carry out our due diligence.
Consumer Protection
Consumer protection from unfair trading regulations 2008 - Holters for themselves and for the vendors or lessors of this property whose agents they are give notice that: 1. These particulars are set out as a general outline only for the guidance of intended purchasers or lessors and do not constitute part of an offer or contract. 2. All descriptions, dimensions, reference to condition and necessary permissions for use and occupation, and other details are given without responsibility and any intending purchasers or tenants should not rely on them as statements or representations of fact but must satisfy themselves by inspection or otherwise as to the correctness of each term of them. 3. The vendors or lessors do not make or give, and neither do Holters for themselves nor any person in their employment have any authority to make or give any representation or warranty whatever in relation to this property.
Viewing
Please contact us on 01686 213179 if you wish to arrange a viewing appointment for this property, or require further information.
Energy Performance Certificate
Click here to view the Energy Efficiency Rating and Environmental Impact Rating for this property.
Disclaimer
Holters - SY1 endeavour to maintain accurate depictions of properties in Virtual Tours, Floor Plans and descriptions, however, these are intended only as a guide and purchasers must satisfy themselves by personal inspection.

